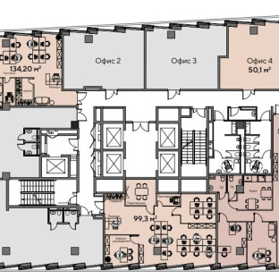
Аренда офиса площадью 99 кв.м.
Основные характеристики
- Площадь: 99 м²
- Стоимость аренды: 32 000 ₽ м² в год
- Этаж: 5 из 13
- НДС: Включая НДС
- Состояние: Под отделку
- Тип объекта: Офис
- Класс: A
- Окна: Витринные
- Планировка: Смешанная
- Комунальные услуги: Оплачиваются по факту
- Тип сделки: Прямая аренда
- Вход: 0
Об оъекте
2023
год основания
13
этажей
A
класс офисов
Паркинг
На карте
Показывать объекты рядомПроложить маршрут
Фотогалерея
Скачать PDF с полной информацией об объекте
Нажимая на кнопку, Вы даете согласие на обработку, хранение и использование ваших персональных данных
Спасибо за заявку
Сейчас начнется скачивание каталога
Если скачивание не началось автоматически, кликните по этой ссылке


ГЕОЛОГ
Москва, ул Обручева, 23 к 2 стр 3
Номер лота
59106
Метро
Калужская
600м
Район
99 м2
32 000 ₽ м² в год
264 000 ₽ в месяц
Редеве́лопмент
Перепрофилирование невостребованных в существующем состоянии объектов недвижимости или нерационально используемых территорий
Лофт объекты - или не обычный офис
Компания «Спринтхост» взяла в субаренду часть площадей группы «Самолет» в бизнес-центре ICON
Редеве́лопмент
Перепрофилирование невостребованных в существующем состоянии объектов недвижимости или нерационально используемых территорий




