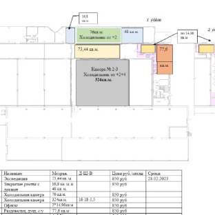
Аренда офиса площадью 645 кв.м.
Основные характеристики
- Площадь: 645 м²
- Стоимость аренды: 10 214 ₽ м² в год
- Этаж: 1 из 1
- НДС: УСН
- Состояние: Готово к въезду
- Тип объекта: Склад
- Класс: C
- Окна: 0
- Планировка: Смешанная
- Комунальные услуги: Оплачиваются по факту
- Тип сделки: Прямая аренда
- Вход: 0
Об оъекте
Неизвестно
год основания
1
этажей
C
класс офисов
Паркинг
На карте
Показывать объекты рядомПроложить маршрут
Фотогалерея
Скачать PDF с полной информацией об объекте
Нажимая на кнопку, Вы даете согласие на обработку, хранение и использование ваших персональных данных
Спасибо за заявку
Сейчас начнется скачивание каталога
Если скачивание не началось автоматически, кликните по этой ссылке


улица Академика Легостаева, 12
Московская, ул Академика Легостаева, 12
Номер лота
41559
Метро
Селигерская
1200м
Бескудниково
1600м
Район
645 м2
10 214 ₽ м² в год
549 003 ₽ в месяц
Редеве́лопмент
Перепрофилирование невостребованных в существующем состоянии объектов недвижимости или нерационально используемых территорий
Лофт объекты - или не обычный офис
Компания «Спринтхост» взяла в субаренду часть площадей группы «Самолет» в бизнес-центре ICON
Редеве́лопмент
Перепрофилирование невостребованных в существующем состоянии объектов недвижимости или нерационально используемых территорий












