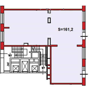
Аренда офиса площадью 161 кв.м.
Основные характеристики
- Площадь: 161 м²
- Стоимость аренды: 38 758 ₽ м² в год
- Этаж: 1 из 20
- НДС: УСН
- Состояние: Под отделку
- Тип объекта: ПСН
- Класс: B
- Высота потолков: 6м
- Планировка: Смешанная
- Комунальные услуги: Оплачиваются по факту
- Тип сделки: Прямая аренда
Об оъекте
2019год основания
20этажей
Bкласс офисов
На карте
Показывать объекты рядомПроложить маршрут
Фотогалерея
Скачать PDF с полной информацией об объекте
Нажимая на кнопку, Вы даете согласие на обработку, хранение и использование ваших персональных данных
Спасибо за заявку
Сейчас начнется скачивание каталога
Если скачивание не началось автоматически, кликните по этой ссылке


Новочерёмушкинская 17
Москва, ул Новочерёмушкинская, 17
Номер лота
35636
Метро
Академическая
700м
Профсоюзная
1400м
Район
161 м2
38 758 ₽ м² в год
520 003 ₽ в месяц



























