Аренда офиса площадью 518 - 518 кв.м., 1-2
Основные характеристики
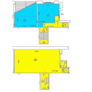
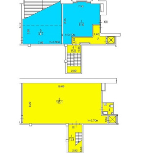
- Площадь: 518 - 518 м²
- Стоимость аренды: 20 948 ₽ м² в год
- Этаж: 1-2 из 16
- НДС: УСН
- Состояние: Готово к въезду, требуется косметический ремонт
- Тип объекта: Retail
- Класс: B+
- Высота потолков: 3м
- Планировка: Смешанная
- Комунальные услуги: Оплачиваются по факту
- Тип сделки: Прямая аренда
Об оъекте
2016год основания
16этажей
B+класс офисов
На карте
Показывать объекты рядомПроложить маршрут
Фотогалерея
Скачать PDF с полной информацией об объекте
Нажимая на кнопку, Вы даете согласие на обработку, хранение и использование ваших персональных данных
Спасибо за заявку
Сейчас начнется скачивание каталога
Если скачивание не началось автоматически, кликните по этой ссылке


Орджоникидзе, 1
Москва, ул Орджоникидзе, 1
Номер лота
48874
Метро
Шаболовская
900м
Тульская
1100м
Район
518 м2
20 948 ₽ м² в год
904 255 ₽ в месяц













