Москва, Охотный Ряд, 2 10:00 - 22:00 ежедневно

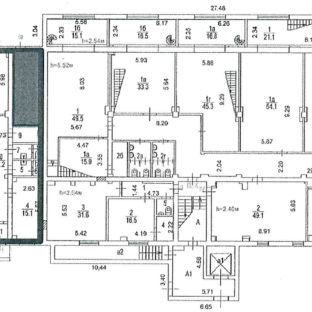
Аренда офиса площадью 134 кв.м.

Основные характеристики

  • Площадь: 134 м²
  • Стоимость аренды: 32 000 ₽ м² в год
  • Этаж: 1 из 5
  • НДС: Включая НДС
  • Состояние: Готово к въезду
  • Тип объекта: Офис
  • Класс: B
  • Окна: 0
  • Планировка: Смешанная
  • Комунальные услуги: Включены в АС
  • Тип сделки: Прямая аренда
  • Вход: 0

Планировка

Планировка

Об оъекте

Неизвестно год основания
5 этажей
B класс офисов
Паркинг
Проложить маршрут
Чтобы проложить маршрут введите Ваш адрес:

Фотогалерея

Скачать PDF с полной информацией об объекте

Орджоникидзе 11 стр 3

Москва, ул Орджоникидзе, 11 стр 3

Номер лота
43824
Метро
Ленинский проспект
600м
Район
134 м2
32 000 м² в год
357 333 ₽ в месяц

Экспертные статьи,
новости

Спасибо за заявку!
спасибо за заявку, наши менеджеры с вами свяжутся в течении 15 минут в рабочее время по телефону