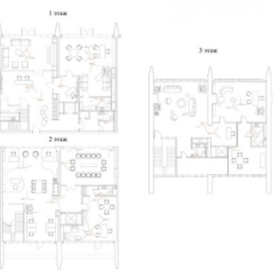
Аренда офиса площадью 742 - 742 кв.м., 1-3 этаж
Основные характеристики
- Площадь: 742 - 742 м²
- Стоимость аренды: 72 777 ₽ м² в год
- Этаж: 1-3 этаж из 78
- НДС: Включая НДС
- Состояние: Готово к въезду
- Тип объекта: Офис
- Класс: A
- Высота потолков: Неизвестно
- Планировка: Смешанная
- Комунальные услуги: Оплачиваются по факту
- Тип сделки: Прямая аренда
Об оъекте
2019год основания
78этажей
Aкласс офисов
На карте
Показывать объекты рядомПроложить маршрут
Фотогалерея
Скачать PDF с полной информацией об объекте
Нажимая на кнопку, Вы даете согласие на обработку, хранение и использование ваших персональных данных
Спасибо за заявку
Сейчас начнется скачивание каталога
Если скачивание не началось автоматически, кликните по этой ссылке


Нева Тауэрс 2
Москва, проезд 1-й Красногвардейский, 22 стр2
Номер лота
48851
Метро
Деловой центр
300м
Международная
400м
Район
742 м2
72 777 ₽ м² в год
4 500 045 ₽ в месяц
















