Аренда офиса площадью 158 кв.м.
Основные характеристики
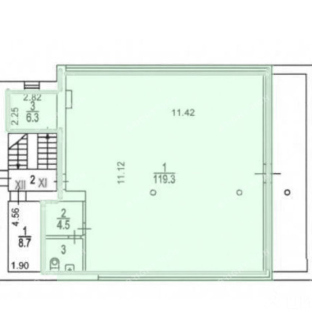
- Площадь: 158 м²
- Стоимость аренды: 57 000 ₽ м² в год
- Этаж: -1 из 3
- НДС: Включая НДС
- Состояние: Готово к въезду
- Тип объекта: Офис
- Класс: B
- Высота потолков: Неизвестно
- Планировка: Смешанная
- Комунальные услуги: Оплачиваются по факту
- Тип сделки: Прямая аренда
Об оъекте
1917год основания
3этажей
Bкласс офисов
На карте
Показывать объекты рядомПроложить маршрут
Фотогалерея
Скачать PDF с полной информацией об объекте
Нажимая на кнопку, Вы даете согласие на обработку, хранение и использование ваших персональных данных
Спасибо за заявку
Сейчас начнется скачивание каталога
Если скачивание не началось автоматически, кликните по этой ссылке


Ноев Ковчег
Москва, пер Малый Ивановский, 7-9 с1
Номер лота
19232
Метро
Китай-город
700м
Сретенский бульвар
14000м
Район
158 м2
57 000 ₽ м² в год
750 500 ₽ в месяц




















