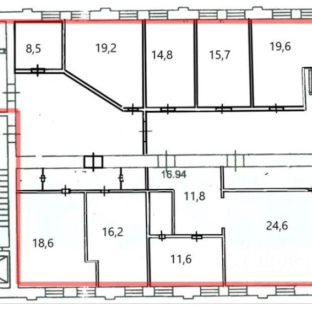
Аренда офиса площадью 264 кв.м.
Основные характеристики
- Площадь: 264 м²
- Стоимость аренды: 26 137 ₽ м² в год
- Этаж: 11 из 11
- НДС: Включая НДС
- Состояние: Готово к въезду
- Тип объекта: Офис
- Класс: B
- Высота потолков: 3м
- Планировка: Смешанная
- Комунальные услуги: Включены в АС
- Тип сделки: Прямая аренда
Об оъекте
2007год основания
11этажей
Bкласс офисов
На карте
Показывать объекты рядомПроложить маршрут
Фотогалерея
Скачать PDF с полной информацией об объекте
Нажимая на кнопку, Вы даете согласие на обработку, хранение и использование ваших персональных данных
Спасибо за заявку
Сейчас начнется скачивание каталога
Если скачивание не началось автоматически, кликните по этой ссылке


Сущёвский Вал 16 стр. 3
Москва, ул Сущёвский Вал, 16 стр 3, стр.4, стр 5
Номер лота
67470
Метро
Савеловская
1200м
Марьина роща
1100м
Район
264 м2
26 137 ₽ м² в год
575 014 ₽ в месяц














