Аренда офиса площадью 404 кв.м.
Основные характеристики
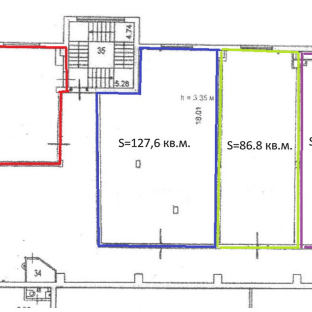
- Площадь: 404 м²
- Стоимость аренды: 30 000 ₽ м² в год
- Этаж: 1 из 22
- НДС: УСН
- Состояние: Готово к въезду
- Тип объекта: Офис
- Класс: B+
- Высота потолков: Неизвестно
- Планировка: Смешанная
- Комунальные услуги: Оплачиваются по факту
- Тип сделки: Прямая аренда
Об оъекте
22этажей
B+класс офисов
На карте
Показывать объекты рядомПроложить маршрут
Скачать PDF с полной информацией об объекте
Нажимая на кнопку, Вы даете согласие на обработку, хранение и использование ваших персональных данных
Спасибо за заявку
Сейчас начнется скачивание каталога
Если скачивание не началось автоматически, кликните по этой ссылке


Мастеркова 4
Москва, ул Мастеркова, 4
Номер лота
67732
Метро
Автозаводская
100м
Район
404 м2
30 000 ₽ м² в год
1 010 000 ₽ в месяц
