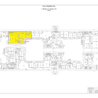
Аренда офиса площадью 185 кв.м.
Основные характеристики
- Площадь: 185 м²
- Стоимость аренды: 58 400 ₽ м² в год
- Этаж: 1 из 7
- НДС: Включая НДС
- Состояние: Готово к въезду
- Тип объекта: Офис
- Класс: B
- Высота потолков: Неизвестно
- Планировка: Открытая
- Комунальные услуги: Включены в АС
- Тип сделки: Прямая аренда
Об оъекте
1914год основания
7этажей
Bкласс офисов
На карте
Показывать объекты рядомПроложить маршрут
Фотогалерея
Скачать PDF с полной информацией об объекте
Нажимая на кнопку, Вы даете согласие на обработку, хранение и использование ваших персональных данных
Спасибо за заявку
Сейчас начнется скачивание каталога
Если скачивание не началось автоматически, кликните по этой ссылке


Лесная 43
Москва, ул Лесная, 43
Номер лота
67687
Метро
Белорусская
600м
Менделеевская
680м
Район
185 м2
58 400 ₽ м² в год
900 333 ₽ в месяц
















