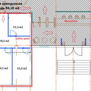
Аренда коворкинга площадью 94 кв.м.
Основные характеристики
- Площадь: 94 м²
- Стоимость аренды: 105 504 ₽ м² в год
- Этаж: 1 из 4
- НДС: Не включая НДС
- Состояние: Готово к въезду
- Тип объекта: Коворкинг
- Класс: B+
- Высота потолков: Неизвестно
- Планировка: Смешанная
- Комунальные услуги: Включены в АС
- Тип сделки: Прямая аренда
Об оъекте
1996год основания
4этажей
B+класс офисов
На карте
Показывать объекты рядомПроложить маршрут
Фотогалерея
Скачать PDF с полной информацией об объекте
Нажимая на кнопку, Вы даете согласие на обработку, хранение и использование ваших персональных данных
Спасибо за заявку
Сейчас начнется скачивание каталога
Если скачивание не началось автоматически, кликните по этой ссылке


Дом Немецкой Экономики
Москва, пер 1-й Казачий, 7
Номер лота
63796
Метро
Полянка
400м
Добрынинская
700м
Район
94 м2
105 504 ₽ м² в год
826 448 ₽ в месяц








