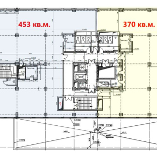
Аренда офиса площадью 453 кв.м.
Основные характеристики
- Площадь: 453 м²
- Стоимость аренды: 33 000 ₽ м² в год
- Этаж: 6 из 9
- НДС: Не включая НДС
- Состояние: Под отделку
- Тип объекта: Офис
- Класс: A
- Высота потолков: Неизвестно
- Планировка: Смешанная
- Комунальные услуги: Оплачиваются по факту
- Тип сделки: Прямая аренда
Об оъекте
Бизнес центр «Берников» – это современный бизнес-центр класса А в историческом здании XIX века, расположенный в самом центре Москвы (Таганский район).
2025год основания
9этажей
Aкласс офисов
Офисы от 30 до 1 500 м²
Высота потолков: 3,2–3,5 м.
Круглосуточная охрана и видеонаблюдение.
Конференц-залы
Панорамные окна
Офисы от 30 до 1 500 м²
Высота потолков: 3,2–3,5 м.
Круглосуточная охрана и видеонаблюдение.
Конференц-залы
Панорамные окнаТранспортная доступность
5–7 минут до ТТК (через Таганскую площадь).
10 минут до Кремля (в часы без пробок).
Подземная парковка в БЦ (платная, для арендаторов).
Уличная парковка ограничена (зона платная, часто занята).
Метро «Таганская» 7 минутт пешком
3 минуты до Садового кольцаНа карте
Показывать объекты рядомПроложить маршрут
Фотогалерея
Скачать PDF с полной информацией об объекте
Нажимая на кнопку, Вы даете согласие на обработку, хранение и использование ваших персональных данных
Спасибо за заявку
Сейчас начнется скачивание каталога
Если скачивание не началось автоматически, кликните по этой ссылке


Берников
Москва, ул Николоямская, 11 стр 2
Номер лота
59939
Метро
Таганская
700м
Марксистская
900м
Район
453 м2
33 000 ₽ м² в год
1 245 750 ₽ в месяц














