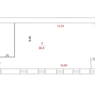
Аренда офиса площадью 128 кв.м.
Основные характеристики
- Площадь: 128 м²
- Стоимость аренды: 40 000 ₽ м² в год
- Этаж: 1 из 4
- НДС: УСН
- Состояние: Готово к въезду
- Тип объекта: Офис
- Класс: B+
- Окна: 0
- Планировка: Смешанная
- Комунальные услуги: Оплачиваются по факту
- Тип сделки: Прямая аренда
- Вход: 0
Об оъекте
1917
год основания
4
этажей
B+
класс офисов
Паркинг
Возможна свободная планировка офисов
Панорамные окна, естественное освещение
Круглосуточная охрана, видеонаблюдение
Климат-контроль
Скоростные лифты
Возможна свободная планировка офисов
Панорамные окна, естественное освещение
Круглосуточная охрана, видеонаблюдение
Климат-контроль
Скоростные лифтыТранспортная доступность
Удобный выезд на Новый Арбат, Садовое кольцо, ТТК.
3 мин. до пешеходного выхода на Арбат.
7 мин. до делового квартала на Новом Арбате.
12 мин. на такси до Москва-Сити в часы без пробок.
До Кремля – 5–10 минут (без пробок).
Метро «Смоленская» 5 минут пешком
Садовое кольцо 3 минуты на авто На карте
Показывать объекты рядомПроложить маршрут
Фотогалерея
Скачать PDF с полной информацией об объекте
Нажимая на кнопку, Вы даете согласие на обработку, хранение и использование ваших персональных данных
Спасибо за заявку
Сейчас начнется скачивание каталога
Если скачивание не началось автоматически, кликните по этой ссылке


Кривоарбатский 13 с2
Москва, пер Кривоарбатский, 13 стр 2
Номер лота
24968
Метро
Смоленская
600м
Кропоткинская
1000м
Район
128 м2
40 000 ₽ м² в год
426 667 ₽ в месяц
Редеве́лопмент
Перепрофилирование невостребованных в существующем состоянии объектов недвижимости или нерационально используемых территорий
Лофт объекты - или не обычный офис
Компания «Спринтхост» взяла в субаренду часть площадей группы «Самолет» в бизнес-центре ICON
Редеве́лопмент
Перепрофилирование невостребованных в существующем состоянии объектов недвижимости или нерационально используемых территорий


















