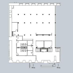
Аренда офиса площадью 743 кв.м.
Основные характеристики
- Площадь: 743 м²
- Стоимость аренды: 37 000 ₽ м² в год
- Этаж: 1 из 5
- НДС: Включая НДС
- Состояние: Готово к въезду
- Тип объекта: Офис
- Класс: B+
- Высота потолков: Неизвестно
- Планировка: Смешанная
- Комунальные услуги: Оплачиваются по факту
- Тип сделки: Прямая аренда
Об оъекте
1867год основания
5этажей
B+класс офисов
На карте
Показывать объекты рядомПроложить маршрут
Фотогалерея
Скачать PDF с полной информацией об объекте
Нажимая на кнопку, Вы даете согласие на обработку, хранение и использование ваших персональных данных
Спасибо за заявку
Сейчас начнется скачивание каталога
Если скачивание не началось автоматически, кликните по этой ссылке


Даниловская Мануфактура - КНОП
Москва, ш Варшавское, 9 стр 1
Номер лота
45896
Метро
Тульская
1100м
Район
743 м2
37 000 ₽ м² в год
2 290 917 ₽ в месяц











































