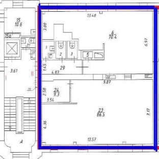
Аренда офиса площадью 191 кв.м.
Основные характеристики
- Площадь: 191 м²
- Стоимость аренды: 75 393 ₽ м² в год
- Этаж: 3 из 4
- НДС: Включая НДС
- Состояние: Готово к въезду
- Тип объекта: Офис
- Класс: B+
- Высота потолков: Неизвестно
- Планировка: Смешанная
- Комунальные услуги: Включены в АС
- Тип сделки: Субаренда
Об оъекте
1892год основания
4этажей
B+класс офисов
На карте
Показывать объекты рядомПроложить маршрут
Фотогалерея
Скачать PDF с полной информацией об объекте
Нажимая на кнопку, Вы даете согласие на обработку, хранение и использование ваших персональных данных
Спасибо за заявку
Сейчас начнется скачивание каталога
Если скачивание не началось автоматически, кликните по этой ссылке


Столешников 14
Москва, пер Столешников, 14
Номер лота
67561
Метро
Театральная
500м
Чеховская
500м
Район
191 м2
75 393 ₽ м² в год
1 200 005 ₽ в месяц


















