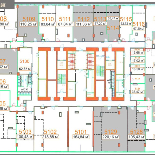
Аренда офиса площадью 110 кв.м.
Основные характеристики
- Площадь: 110 м²
- Стоимость аренды: 60 000 ₽ м² в год
- Этаж: 51 из 60
- НДС: Не включая НДС
- Состояние: Готово к въезду
- Тип объекта: Офис
- Класс: A
- Высота потолков: Неизвестно
- Планировка: Открытая
- Комунальные услуги: Оплачиваются по факту
- Тип сделки: Прямая аренда
Об оъекте
Башня «Империя» — это современный небоскреб с высоким уровнем комфорта, технологичности и престижности. Она служит важным деловым центром Москвы, привлекая международные компании и элитных арендаторов благодаря своему расположению, архитектуре и инфраструктуре.
Высота около 264 метров
Подземная парковка для автомобилей
Панорамное остекление с видами на Москву-реку и город
Конференц-залы до 200 человек
Многоуровневая охрана (вооружённые сотрудники, видеонаблюдение)
Высота около 264 метров
Подземная парковка для автомобилей
Панорамное остекление с видами на Москву-реку и город
Конференц-залы до 200 человек
Многоуровневая охрана (вооружённые сотрудники, видеонаблюдение)Транспортная доступность
Расположен в районе «Москва-Сити», деловой центр Москвы.
Близость к станциям метро «Выставочная», «Деловой центр».
Выезд на ТТК за 2 минуты.
До Кремля – 10 минут без пробок.
Подземная парковка для автомобилей.
До станции метро «Выставочная» и «Деловой центр» 2 минуты пешкомНа карте
Показывать объекты рядомСкачать PDF с полной информацией об объекте
Спасибо за заявку
Сейчас начнется скачивание каталога
Если скачивание не началось автоматически, кликните по этой ссылке


