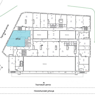
Аренда офиса площадью 217 кв.м.
Основные характеристики
- Площадь: 217 м²
- Стоимость аренды: 57 000 ₽ м² в год
- Этаж: 6 из 7
- НДС: Включая НДС
- Состояние: Готово к въезду
- Тип объекта: Офис
- Класс: A
- Высота потолков: Неизвестно
- Планировка: Смешанная
- Комунальные услуги: Включены, кроме эл. энергии
- Тип сделки: Прямая аренда
Об оъекте
2006год основания
7этажей
Aкласс офисов
На карте
Показывать объекты рядомПроложить маршрут
Фотогалерея
Скачать PDF с полной информацией об объекте
Нажимая на кнопку, Вы даете согласие на обработку, хранение и использование ваших персональных данных
Спасибо за заявку
Сейчас начнется скачивание каталога
Если скачивание не началось автоматически, кликните по этой ссылке


Никольская плаза
Москва, ул Никольская, 10
Номер лота
68038
Метро
Площадь революции
310м
Лубянка
250м
Район
217 м2
57 000 ₽ м² в год
1 030 750 ₽ в месяц












